Negentro-Pic
윤문주







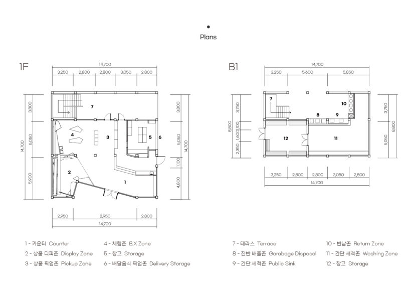
여의도 한강공원의 다회용기 배달 문화 형성을 위한 제로 웨이스트 피크닉 스토어
여의도 한강공원의 코로나 이후 심각해진 쓰레기 문제는 엔트로피(Entropy), 즉 무질서한 에너지의 개념과 닮아있다. Negentro-Pic은 이러한 혼돈의 엔트로피를 제압하는 질서 있는 에너지를 뜻하는 네겐트로피(Negentrophy)를 컨셉으로 삼아, 여의나루역 3번 출구 앞에 위치한 다회용 피크닉 용품 대여 및 반납 스토어이다. 이곳은 다회용기 사용에 대한 긍정적인 경험을 제공하여, 쓰레기로 인한 무질서에서 벗어나 질서 있는 세상으로 나아가는 첫걸음을 함께한다. 점차 질서 있는 조형으로 변해가는 공간에서의 다회용기 대여와 반납은 친환경적인 피크닉 경험을 통해 지속 가능한 피크닉 문화를 만드는 출발점이 될 것이다.
윤문주 / Yoon Moonju