[Creator+] 푸하하하 프렌즈의 A to Z: ‘2025 서울시 건축상 대상’부터 ‘하이브 신사옥’까지
윤한진·한승재·한양규 푸하하하 프렌즈 공동 대표
푸하하하 프렌즈는 기업과 브랜드부터 기관과 개인까지 다양한 클라이언트와 함께합니다. 하이브 사옥, 성수연방, JTBC PLAY, 어라운드 사옥 같은 기업 공간부터 ㅁㅁㄷ-작은집, 빈 모서리 집, 후암동의 추억, 괴산27호 등 개인 주거까지 폭넓게 다뤄왔죠. 각 프로젝트와 더불어 푸하하하 프렌즈가 어떻게 건축을 실험해 왔는지를 A부터 Z까지 키워드로 소개합니다.

패션 브랜드 디스이즈네버댓 사옥 ‘코어해체시스템’으로 2025년 서울시 건축상 대상을 받은 푸하하하 프렌즈(윤한진, 한승재, 한양규). 코어를 흩어 배치하고 교차형 ‘가위계단’을 중심에 둔 실험적 설계는 브랜드의 조직 문화를 건축적으로 풀어낸 시도였습니다. 하이브 사옥, 성수연방, 빈 모서리의 집 등 기업부터 개인 주거 공간까지, 프로젝트의 성격은 달라도 클라이언트를 0순위에 두는 태도는 변하지 않았습니다. 설립 12년 차를 맞은 지금, 서울에서 가장 주목받는 건축가 집단으로 성장한 이들의 이야기를 A부터 Z까지 키워드로 풀어봅니다.
프로젝트 A to Z
| Around |
| A |
![[Creator+] 푸하하하 프렌즈의 A to Z: '2025 서울시 건축상 대상'부터 '하이브 신사옥'까지 1 b2125c00 9897 4dbc 8af8 39abf94c4d6f 16A02 title 01 1](https://3rd.design.co.kr/wp-content/uploads/2025/09/b2125c00-9897-4dbc-8af8-39abf94c4d6f_16A02-title-01-1-832x1368.jpg)
푸하하하 프렌즈는 연남동의 삼거리 모퉁이에 자리한 작은 대지를 활용해 ‘어라운드매거진 사옥'(2017)을 설계했다. 경의중앙선 철길과 맞닿아 끊임없는 소음이 흐르는 자리였지만, 이를 피해 닫는 대신 빈틈을 공유 공간으로 전환했다. ‘상업’, ‘오피스’, ‘주거’ 세 개의 프로그램을 삼각형 대지 안에 차곡차곡 쌓아 올렸다.
![[Creator+] 푸하하하 프렌즈의 A to Z: '2025 서울시 건축상 대상'부터 '하이브 신사옥'까지 2 image 15](https://3rd.design.co.kr/wp-content/uploads/2025/09/image-15.jpg)
각 층을 1.2m씩 북쪽으로 밀어내어 남측으로는 채광과 일사를 최대한 확보했다. 외장은 흰색 모듈 타일로 마감해, 복잡한 동네 풍경 속에서도 단순한 배경처럼 보이도록 했다.
![[Creator+] 푸하하하 프렌즈의 A to Z: '2025 서울시 건축상 대상'부터 '하이브 신사옥'까지 3 92b4f4ef d379 411b a9e9 8e039ddb235f 16A02 title 08](https://3rd.design.co.kr/wp-content/uploads/2025/09/92b4f4ef-d379-411b-a9e9-8e039ddb235f_16A02-title-08-832x792.jpg)
지하와 1층은 사무와 문화 공간, 2층은 어라운드의 사무실, 상부는 주거 공간으로 구성됐다. 특유의 틈새 공간과 계단은 고양이 집이나 작은 마당으로 변주되는 점도 눈길을 끈다.
| Core-解體 System |
| C |
![[Creator+] 푸하하하 프렌즈의 A to Z: '2025 서울시 건축상 대상'부터 '하이브 신사옥'까지 4 image 14](https://3rd.design.co.kr/wp-content/uploads/2025/09/image-14-832x499.jpg)
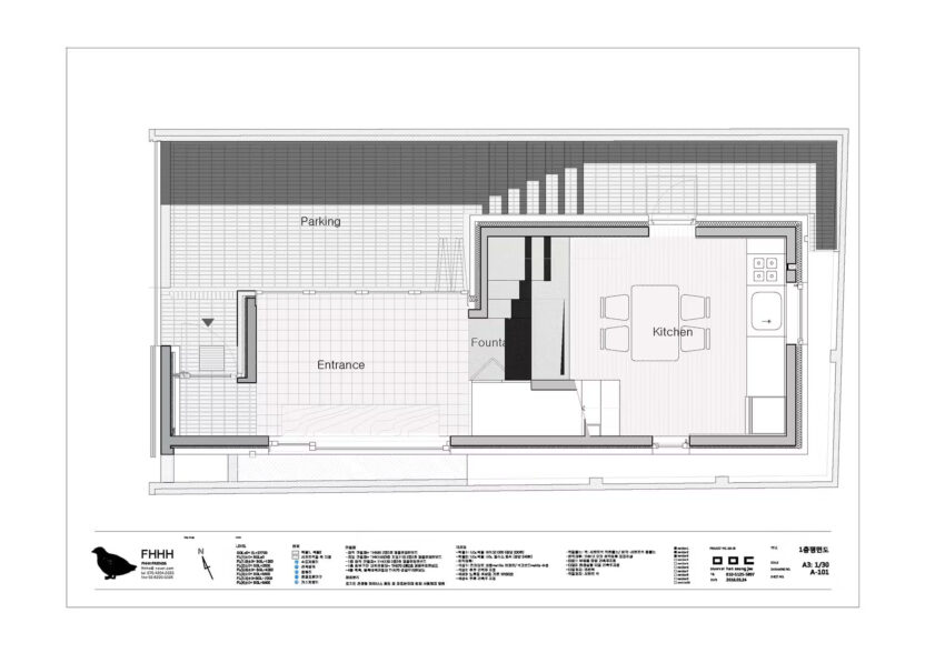
코어해체시스템. 독특한 이름의 건물은 성수동에 자리한 의류 브랜드 디스이즈네버댓의 사옥이다. 푸하하하 프렌즈가 건축 설계를 맡았고, 올해 <서울시 건축상> 대상을 받았다. 겉으로는 평범한 외관이지만 내부 구조는 독창적이다. 상부는 보안이 중요한 사옥으로, 저층과 지하는 시민들이 드나드는 상업 공간으로 계획됐다. 좁고 긴 대지 조건을 해결하기 위해 엘리베이터와 샤프트를 건물 양 끝과 중앙에 분산 배치해 동선을 명확히 나눴다.
![[Creator+] 푸하하하 프렌즈의 A to Z: '2025 서울시 건축상 대상'부터 '하이브 신사옥'까지 5 image 12](https://3rd.design.co.kr/wp-content/uploads/2025/09/image-12-832x693.jpg)
![[Creator+] 푸하하하 프렌즈의 A to Z: '2025 서울시 건축상 대상'부터 '하이브 신사옥'까지 6 image 13](https://3rd.design.co.kr/wp-content/uploads/2025/09/image-13-832x693.jpg)
특히 계단실을 건물 중앙에 배치한 점이 눈에 띈다. 의류 브랜드의 협업 중심 업무 방식을 반영해, 부서 간 자유로운 이동과 교류를 건축적으로 유도한 것이다. 두 필지를 합친 대지 조건 역시 적극적으로 활용해, 동측은 성큰가든(sunken garden)과 지하 출입 동선, 서측은 장애인 전용 접근로, 소규모 도로 쪽은 일반 주차 출입구로 구성했다.
“겉으로는 평범해 보여도 속은 다르게 작동하는 건물이에요. 부서 간 이동이 많은 브랜드 특성을 고려해, 계단을 건물 중앙에 두었습니다.”
한양규 소장, 푸하하하 프렌즈
| Euljiro |
| E |
![[Creator+] 푸하하하 프렌즈의 A to Z: '2025 서울시 건축상 대상'부터 '하이브 신사옥'까지 7 04 6](https://3rd.design.co.kr/wp-content/uploads/2025/09/04-6-832x1248.jpg)
최근 푸하하하 프렌즈는 새로운 보금자리를 을지로에 마련했다. 오래된 건물과 상점들이 빼곡히 들어선 이곳은 먹거리 걱정이 없고 교통도 편리해, 팀의 일상에 잘 맞아떨어진다고.
“여기저기 옮겨 다녔는데, 을지로는 먹을 걱정도 없고 교통도 편해요. 남향 건물 덕분에 불을 켤 일도 거의 없어요”
이사할 때마다 따라다니는 물건들도 있다. 윤한진은 오래된 철제 수납장을, 한양규는 낡은 샤프를 챙긴다. 반대로 한승재는 묵은 물건을 과감히 버리는 타입이다. 각자의 방식은 달라도 늘 잊지 않고 챙기는 물건이 하나 있다. 바로 “우리는 언제나 과정 속에 있다”라는 사훈이 적힌 액자다.
| First |
| F |
![[Creator+] 푸하하하 프렌즈의 A to Z: '2025 서울시 건축상 대상'부터 '하이브 신사옥'까지 8 image 18](https://3rd.design.co.kr/wp-content/uploads/2025/09/image-18-832x1124.jpg)
푸하하하 프렌즈의 첫 건축 프로젝트는 김해 진영읍 봉하마을 인근에서 진행됐다. 15년간 운영된 카페 ‘전통다원흙담’을 철거하고, 전통다원·카페테리아·효소마당·레지던스를 아우르는 복합 공간으로 새롭게 재탄생시켰다.
![[Creator+] 푸하하하 프렌즈의 A to Z: '2025 서울시 건축상 대상'부터 '하이브 신사옥'까지 9 image 20](https://3rd.design.co.kr/wp-content/uploads/2025/09/image-20-832x587.jpg)
![[Creator+] 푸하하하 프렌즈의 A to Z: '2025 서울시 건축상 대상'부터 '하이브 신사옥'까지 10 image 19](https://3rd.design.co.kr/wp-content/uploads/2025/09/image-19-832x553.jpg)
처음엔 1동 2층 규모로 시작했지만, 설계와 시공 과정에서 3층으로, 다시 2개 동으로 확장되며 공사 중 증축까지 이어졌다. 서울에서 6개월간 설계를 진행한 뒤, 현장에서 10개월간 상주하며 감리를 맡았다. 약 16개월의 긴 여정 끝에 건물을 완성했다. 윤한진, 한승재, 한양규 세 명이 푸하하하 프렌즈로서 첫 발을 내딛은 프로젝트다.
| HYBE |
| H |
하이브 신사옥(2021) 프로젝트는 푸하하하 프렌즈가 대중적으로 주목받게 된 계기가 된 프로젝트 중 하나로 꼽힌다. 빅히트 엔터테인먼트가 하이브(HYBE)로 리브랜딩을 선언하며 마련한 용산 신사옥을 공간 디자인 스튜디오 COM과 함께 완성했다.
![[Creator+] 푸하하하 프렌즈의 A to Z: '2025 서울시 건축상 대상'부터 '하이브 신사옥'까지 11 1aae27ef 90c7 44c5 aa6a c3e10b0d48e7 fhhh b model 01 web](https://3rd.design.co.kr/wp-content/uploads/2025/09/1aae27ef-90c7-44c5-aa6a-c3e10b0d48e7_fhhh-b-model-01-_web_-832x1248.jpg)
![[Creator+] 푸하하하 프렌즈의 A to Z: '2025 서울시 건축상 대상'부터 '하이브 신사옥'까지 12 image 11](https://3rd.design.co.kr/wp-content/uploads/2025/09/image-11-832x1248.jpg)
내부는 일정한 그리드 시스템을 기반으로, 아치형 천장과 간접 조명 모듈을 활용해 공간마다 다른 분위기를 연출했다. 복도에는 흡음 패널을 적용해 소음을 최소화했고, 콘크리트와 목재, 다양한 마감재를 조합해 차가움과 따뜻함을 동시에 담았다. 층별로 업무 공간, 제작 공간, 복지 공간이 구분되면서도 유연하게 변형할 수 있도록 설계된 것이 특징이다.
| JTBC PLAY |
| J |
![[Creator+] 푸하하하 프렌즈의 A to Z: '2025 서울시 건축상 대상'부터 '하이브 신사옥'까지 13 6392a8d7 bddb 44ce bb33 f1827a4797fa FHHH JTBC 23 web](https://3rd.design.co.kr/wp-content/uploads/2025/09/6392a8d7-bddb-44ce-bb33-f1827a4797fa_FHHH-JTBC-23_web_-832x1248.jpg)
![[Creator+] 푸하하하 프렌즈의 A to Z: '2025 서울시 건축상 대상'부터 '하이브 신사옥'까지 14 1821abfa a086 492f 833b b4fb224ef9f9 FHHH JTBC 24 web](https://3rd.design.co.kr/wp-content/uploads/2025/09/1821abfa-a086-492f-833b-b4fb224ef9f9_FHHH-JTBC-24_web_-832x1248.jpg)
![[Creator+] 푸하하하 프렌즈의 A to Z: '2025 서울시 건축상 대상'부터 '하이브 신사옥'까지 15 20250917 064001](https://3rd.design.co.kr/wp-content/uploads/2025/09/20250917_064001-832x604.jpg)
홍익대학교 앞 작은 건물을 리노베이션해 만든 JTBC PLAY는 방송국이 온라인·개인 미디어 시대에 어떤 공간을 상상할 수 있는지를 묻는 프로젝트였다. 기존의 대형 방송 스튜디오가 넓은 사각형 구조였다면, 이곳은 삼각형 모듈로 나눈 작은 스튜디오 네 개를 조합해 필요에 따라 확장할 수 있도록 계획됐다. 일상과 멀리 떨어진 ‘닫힌 방송국 스튜디오’와 달리, 창과 가벼운 벽을 두어 보다 열린 방송 환경을 실험한 공간이다. 한편, 가구 디자인은 공간 디자인 스튜디오 COM이 맡았다.
![[Creator+] 푸하하하 프렌즈의 A to Z: '2025 서울시 건축상 대상'부터 '하이브 신사옥'까지 16 image 17](https://3rd.design.co.kr/wp-content/uploads/2025/09/image-17-832x1248.jpg)
스튜디오 구조에 맞춰 휘어지고 이어지는 독창적인 형태로 제작됐다. 건물 중앙을 가르는 벽체는 구조적 안전을 확보하는 동시에 프로그램을 구획하는 장치가 되었다. 프로젝트 소개를 읽어 보면 푸하하하 프렌즈는 단순히 방송을 위한 건물을 설계한 건 아닌 듯하다. 그보다는 JTBC PLAY를 통해 “개인 미디어 시대에 방송국은 무엇을 준비할 것인가”라는 질문을 던지고 싶었던 건 아닐까.
| Narrowness House |
| N |
푸하하하 프렌즈는 개인 클라이언트를 위한 협소주택 프로젝트도 꾸준히 진행해왔다. 면목동에 위치한 ‘ㅁㅁㄷ 작은집’은 그 대표적 사례로, 2017년 제35회 서울특별시 건축상 우수상을 수상했다.
![[Creator+] 푸하하하 프렌즈의 A to Z: '2025 서울시 건축상 대상'부터 '하이브 신사옥'까지 17 ee6b50b2 ddb9 43db 8896 268eaf2632b5 15A04 title 09 2](https://3rd.design.co.kr/wp-content/uploads/2025/09/ee6b50b2-ddb9-43db-8896-268eaf2632b5_15A04-title-09-2-832x1248.jpg)
![[Creator+] 푸하하하 프렌즈의 A to Z: '2025 서울시 건축상 대상'부터 '하이브 신사옥'까지 18 da6c6f7d d77e 48da 9839 f9cc5ad62e2f 15A04 19 1](https://3rd.design.co.kr/wp-content/uploads/2025/09/da6c6f7d-d77e-48da-9839-f9cc5ad62e2f_15A04-19-1.jpg)
![[Creator+] 푸하하하 프렌즈의 A to Z: '2025 서울시 건축상 대상'부터 '하이브 신사옥'까지 19 a3a50fea 00fc 46b9 b407 9078065c6b5f 15A04 title 15](https://3rd.design.co.kr/wp-content/uploads/2025/09/a3a50fea-00fc-46b9-b407-9078065c6b5f_15A04-title-15-832x588.jpg)
이 집은 효율을 극대화하기보다 기능이 없는 ‘여유 공간’을 적극적으로 도입한 점이 특징이다. 현관은 단순한 출입구가 아니라 햇빛과 수돗가, 야외 테이블을 갖춘 공공적 공간으로 확장돼 가족의 생활과 놀이가 함께 이루어진다. 내부에는 아트리움과 천창을 두어 채광과 환기를 확보하고, 발코니·옥상·작은 마당 등 불필요해 보이는 공간들을 삶의 풍요로움으로 전환했다. 외형은 이전에 이 자리를 지켰던 작은 벽돌집을 닮게 설계해 동네 풍경과의 연속성을 이어갔다. 덕분에 주민들은 “집이 새로 지어진 게 아니라 자라났다”라고 표현했다.
| Or Or |
| O |
![[Creator+] 푸하하하 프렌즈의 A to Z: '2025 서울시 건축상 대상'부터 '하이브 신사옥'까지 20 Zmf0d5m069VX1nr FHHHoror 28 web 1 1](https://3rd.design.co.kr/wp-content/uploads/2025/09/Zmf0d5m069VX1nr-_FHHHoror-28-web-1-1-832x1248.jpg)
![[Creator+] 푸하하하 프렌즈의 A to Z: '2025 서울시 건축상 대상'부터 '하이브 신사옥'까지 21 Zmf0dZm069VX1nr7 FHHHoror 26 web 1 1](https://3rd.design.co.kr/wp-content/uploads/2025/09/Zmf0dZm069VX1nr7_FHHHoror-26-web-1-1-832x1248.jpg)
사운즈 한남에 자리한 아이웨어 편집숍 ‘오르오르’ 리뉴얼 프로젝트. 푸하하하 프렌즈는 안경의 배경이 되는 공간을 ‘피부’처럼 보이게 하고자 라텍스라는 낯선 소재를 실험적으로 활용했다. 안경 진열대와 조명 가림막에 라텍스를 적용하고, 철골에 직접 바느질로 고정하는 과정을 팀이 직접 수행했다는 점이 인상적이다.
![[Creator+] 푸하하하 프렌즈의 A to Z: '2025 서울시 건축상 대상'부터 '하이브 신사옥'까지 22 ZmgXKpm069VX1oEk IMG 3704](https://3rd.design.co.kr/wp-content/uploads/2025/09/ZmgXKpm069VX1oEk_IMG_3704-832x1109.jpg)
![[Creator+] 푸하하하 프렌즈의 A to Z: '2025 서울시 건축상 대상'부터 '하이브 신사옥'까지 23 Zo8RGR5LeNNTxAqM IMG 3719](https://3rd.design.co.kr/wp-content/uploads/2025/09/Zo8RGR5LeNNTxAqM_IMG_3719-832x1109.jpg)
![[Creator+] 푸하하하 프렌즈의 A to Z: '2025 서울시 건축상 대상'부터 '하이브 신사옥'까지 24 Zmf0XJm069VX1nrb FHHHoror 02 web](https://3rd.design.co.kr/wp-content/uploads/2025/09/Zmf0XJm069VX1nrb_FHHHoror-02-web--832x555.jpg)
매장 바닥에는 오르오르 로고를 연상시키는 반원과 다각형 패턴이 반복되고, 출입구 벽에는 시계추가 불규칙하게 움직이는 독특한 시계가 설치돼 있다. 비스듬한 면을 활용한 수납장과 숨겨진 선반, 시간이 흐를수록 변색하며 공간과 어우러질 라텍스와 철재 가구까지. 오르오르는 실험과 위트가 공존하는, ‘남들과 같은 길을 걷지 않겠다’는 선언 같은 공간으로 완성됐다.
| Philosophy |
| P |
푸하하하 프렌즈는 건물만 생각하고 건축에 임하지 않는다. 작은 인테리어를 설계할 때조차 점포가 마주 보는 복도나 주변 공간까지 함께 고려하는 이유다. 건축은 땅 위에 홀로 서는 물리적 구조물이 아니라, 주변 맥락과 관계 맺을 때 비로소 완성된다는 것이 이들의 철학이다.
“건물 하나만 잘 놓는다고 대단해지지 않아요. 아무리 큰 건물을 설계하더라도 주변을 고려하지 않는다면 좋은 건축이 될 수 없습니다.”
| Seongsu Federation |
| S |
![[Creator+] 푸하하하 프렌즈의 A to Z: '2025 서울시 건축상 대상'부터 '하이브 신사옥'까지 25 4e2d7629 1499 4057 b52f 722269bb3906 17A08 final 02](https://3rd.design.co.kr/wp-content/uploads/2025/09/4e2d7629-1499-4057-b52f-722269bb3906_17A08-final-02-832x1248.jpg)
![[Creator+] 푸하하하 프렌즈의 A to Z: '2025 서울시 건축상 대상'부터 '하이브 신사옥'까지 26 c60df7ca 4b0e 4a25 a635 7ffde8df2dc3 17A08 06](https://3rd.design.co.kr/wp-content/uploads/2025/09/c60df7ca-4b0e-4a25-a635-7ffde8df2dc3_17A08-06-832x1119.jpg)
성수연방(2018)은 1970년대에 지어진 화학공장을 리노베이션해 완성한 공간이다. 푸하하하 프렌즈가 과거의 흔적을 지우지 않고 새로운 구조를 덧입혔다. 기존에 떨어져 있던 두 동의 건물을 다리로 연결해 건물 간의 흐름을 강화했고, ㄷ자 형태의 배치를 따라 중앙에는 누구나 머물 수 있는 정원을 두었다. 외관은 빛바랜 붉은 벽돌을 그대로 보존하면서도, 콘크리트 기둥과 새로운 구조물을 덧붙여 1970~80년대 건축의 비례와 감각을 현대적으로 재해석했다. 특히 설계는 쉽게 변하는 내부보다 변하지 않는 구조와 외부 공간에 집중했는데 이는 상업적 프로그램이 바뀌더라도 건물이 오랫동안 뿌리내릴 수 있도록 한 장치다.
| THISISNEVERTHAT |
| T |
2025년 서울시 건축상 대상을 받은 디스이즈네버댓의 성수 사옥에 앞서, 푸하하하 프렌즈는 2019년 브랜드의 연희동 사옥을 설계한 바 있다. 기존 주거 구조를 리노베이션해 오피스 빌딩으로 바꾸는 과정에서 전체 벽체의 약 40%를 벗겨내고 새 구조물에 맞춰 재배치했다.
![[Creator+] 푸하하하 프렌즈의 A to Z: '2025 서울시 건축상 대상'부터 '하이브 신사옥'까지 27 image 10](https://3rd.design.co.kr/wp-content/uploads/2025/09/image-10-832x1087.jpg)
![[Creator+] 푸하하하 프렌즈의 A to Z: '2025 서울시 건축상 대상'부터 '하이브 신사옥'까지 28 image 9](https://3rd.design.co.kr/wp-content/uploads/2025/09/image-9-832x1177.jpg)
정면은 반투명 유리로 마감해 내부와 외부가 서로 다른 표정을 가지도록 했다. 안쪽은 빛이 흩어지며 투명한 개방감을 주고, 바깥에서는 단단하고 차가운 표면처럼 보인다. 푸하하하 프렌즈는 무엇보다 건물의 ‘쓸모’를 우선시했다. 미로 같은 동선을 통해 사용자가 공간을 탐색하고 경험하도록 의도했는데, 단순한 사옥을 넘어 브랜드가 지닌 도전적인 성격과 태도를 건축적으로 해석한 점이 인상적이다.
[Creator+]는 Design+의 스페셜 시리즈입니다. 시선을 사로잡는 프로젝트에 크리에이터의 일과 삶의 경로, 태도와 방식을 더해 소개합니다. 인물을 조명하는 1편과 프로젝트를 A to Z로 풀어내는 2편으로 구성되었으며, 격주로 발행됩니다. [Creator+]는 동시대 주목할만한 디자이너와 아티스트를 소개한 ‘오!크리에이터’를 잇는 두 번째 크리에이터 기획입니다.
![[Creator+] 푸하하하 프렌즈의 A to Z: '2025 서울시 건축상 대상'부터 '하이브 신사옥'까지 29 20250917 074046](https://3rd.design.co.kr/wp-content/uploads/2025/09/20250917_074046.jpg)
![[Creator+] 푸하하하 프렌즈의 A to Z: '2025 서울시 건축상 대상'부터 '하이브 신사옥'까지 30 20250917 090034](https://3rd.design.co.kr/wp-content/uploads/2025/09/20250917_090034.jpg)