[Creator+] 이영주의 A to Z: 〈흑백요리사〉부터 〈피지컬: 100〉까지 출연진을 몰입하게 하는 세트 디자인
이영주 아츠 대표·미술감독
이영주 미술감독의 프로젝트에는 그가 맡은 예능 프로그램 속 미션만큼 놀라운 요소와 흥미로운 비하인드 스토리가 있다. 프로덕션 디자인 회사 ‘아츠’에서부터 시작해 무용 무대와 드라마 오픈세트, 추리와 서바이벌 예능의 공간까지. 미스터리한 사건을 풀어나가는 수사단처럼 이영주 미술감독의 프로젝트를 키워드로 살펴본다.

이영주 미술감독이 만든 세계에 들어온 출연자들의 반응은 대체로 이렇습니다. “와, 대박이다.” 뚜렷이 설명하기는 어렵지만, 그 공간이 현실적이면서도 무언가 다르다는 것을 알 수 있기 때문이죠. 이영주 미술감독이 맡는 많은 예능 프로그램에서 공간은 단순한 배경 이상입니다. 인물들의 행동과 사건에 영향을 미치는, 그 자체로 하나의 장치가 되며 설득력과 몰입도를 좌우하는 핵심 요소이죠. 출연진은 물론 시청자도 함께 과몰입하게 만드는 프로덕션 디자인의 숨은 이야기를 들었습니다.
프로젝트 A to Z
| ATTS |
| A |
〈데블스 플랜〉, 〈피지컬: 100 – 언더그라운드〉, 〈미스터리 수사단〉, 〈흑백요리사: 요리 계급 전쟁〉 등 ‘역대급’ 규모라고 소개되는 예능 작품들의 공간과 ‘ASEA 2024 in JAPAN’ 같은 글로벌 시상식의 무대가 설립 3년 차의 작은 회사를 통해 구현되었다. 아츠(ATTS)는 이영주 미술감독이 이끄는 프로덕션 디자인 회사이다. 이름은 ‘Art, Technology, Time, Space’의 약자를 조합해 만들었다. 2022년 정종연 PD가 연출한 〈데블스 플랜〉의 준비와 동시에 아츠가 시작됐다. 이영주 미술감독이 대표이자 실무자로 프리랜서 디자이너를 포함해 3~4명의 팀원과 함께 각 프로젝트의 컨셉 디자인부터 실시 설계, 시공 도면, 시안, 가구, 소품, 조명, 데코레이션 디자인, 세트, 시공에 대한 감리 및 현장 진행까지 담당한다.
“아츠는 방송, 영화, 영상, 공연, 콘서트, 전시, 이벤트, 테마파크 등 다양한 장르의 종합 예술을 위한 공간 디자인에 시간을 부여하고, 테크놀로지와 아트를 결합해 유니크하고 오리지널리티를 갖는 프로덕션 디자인을 추구합니다.”
| Bare Tree |
| B |
이영주 미술감독의 작업 중 상징과 재해석이 담긴 무대미술의 매력이 엿보이는 커리어 초기 작업이다. 이영주 미술감독이 무대 디자인을 담당한 〈나목〉은 2000년대 초반 문예회관소극장(현 아르코 예술극장 소극장)에 올린 무용 공연이다. 층고가 낮은 작은 무대에서 무용수와 상호작용하는 나무를 표현하기 위해 염색한 광목천을 묶어 나무의 기둥을 만들고, 무용수가 그 사이를 오가도록 했다.
| Culinary Class Wars |
| C |
![[Creator+] 이영주의 A to Z: 〈흑백요리사〉부터 〈피지컬: 100〉까지 출연진을 몰입하게 하는 세트 디자인 1 %ED%9D%91%EB%B0%B1%EC%9A%94%EB%A6%AC%EC%82%AC 3D %EB%B3%B5%EC%82%AC](https://design-plus.storage.googleapis.com/wp-content/uploads/2024/11/05181023/%ED%9D%91%EB%B0%B1%EC%9A%94%EB%A6%AC%EC%82%AC_3D-%EB%B3%B5%EC%82%AC-832x428.jpg)
![[Creator+] 이영주의 A to Z: 〈흑백요리사〉부터 〈피지컬: 100〉까지 출연진을 몰입하게 하는 세트 디자인 2 %ED%9D%91%EB%B0%B1%EC%9A%94%EB%A6%AC%EC%82%AC %EC%82%AC%EC%A7%84 02](https://design-plus.storage.googleapis.com/wp-content/uploads/2024/11/05181022/%ED%9D%91%EB%B0%B1%EC%9A%94%EB%A6%AC%EC%82%AC_%EC%82%AC%EC%A7%84_02-832x541.jpg)
올해 하반기 화제작은 단연 〈흑백요리사: 요리 계급 전쟁〉(이하 ‘흑백요리사’)이다. 이영주 미술감독은 각 라운드의 성격에 맞춰 바뀌는 세트 디자인을 모두 품을 수 있는 하나의 공간이자 미션이 진행되지 않을 때는 〈흑백요리사〉의 아이덴티티를 보여줄 수 있도록 전체적인 컨셉을 지하의 ‘푸드뱅크’로 설정했다. 이는 식물 종자 저장소인 시드뱅크에서 영감을 얻은 것이다. 〈흑백요리사〉는 요리 경연 프로그램이기 때문에 푸드뱅크라는 컨셉을 구현하는 동시에 기능과 안전 관리 역시 중요했다. 40개의 조리대에서 동시에 물과 불을 사용할 수 있어야 하며, 40인의 셰프를 카메라에 담는 동선과 구역, 방염과 방수 처리 등에도 중점을 두고 세트를 디자인했다.
“‘1:1 흑백 대전’ 블라인드 심사 공간을 위해 처음부터 동굴 같은 디자인을 구상한 건 아니었어요. 이곳에 들어왔을 때 무게감이 있어서 긴장감이 도는, 조금은 엄숙한 공간이었으면 좋겠다는 연출진의 의견이 있었죠. 푸드뱅크는 지하잖아요. 이곳은 조금 더 깊은 지하 공간이어서 암벽이 그대로 노출된 모습으로 다른 분위기를 만들고자 했습니다.”
| Dancing 9 |
| D |
![[Creator+] 이영주의 A to Z: 〈흑백요리사〉부터 〈피지컬: 100〉까지 출연진을 몰입하게 하는 세트 디자인 3 %EB%8C%84%EC%8B%B19 3D 01](https://design-plus.storage.googleapis.com/wp-content/uploads/2024/11/05181020/%EB%8C%84%EC%8B%B19_3D_01-832x476.jpg)
![[Creator+] 이영주의 A to Z: 〈흑백요리사〉부터 〈피지컬: 100〉까지 출연진을 몰입하게 하는 세트 디자인 4 %EB%8C%84%EC%8B%B19 3D 02](https://design-plus.storage.googleapis.com/wp-content/uploads/2024/11/05181019/%EB%8C%84%EC%8B%B19_3D_02-832x465.jpg)
![[Creator+] 이영주의 A to Z: 〈흑백요리사〉부터 〈피지컬: 100〉까지 출연진을 몰입하게 하는 세트 디자인 5 %EB%8C%84%EC%8B%B19 3D 03](https://design-plus.storage.googleapis.com/wp-content/uploads/2024/11/05181021/%EB%8C%84%EC%8B%B19_3D_03-832x418.jpg)
![[Creator+] 이영주의 A to Z: 〈흑백요리사〉부터 〈피지컬: 100〉까지 출연진을 몰입하게 하는 세트 디자인 6 %EB%8C%84%EC%8B%B19 %EC%82%AC%EC%A7%84 01](https://design-plus.storage.googleapis.com/wp-content/uploads/2024/11/05181021/%EB%8C%84%EC%8B%B19_%EC%82%AC%EC%A7%84_01-832x463.jpg)
국내 댄스 서바이벌 붐의 시작점에 있다고 할 수 있는 〈댄싱 9〉은 2013년, 이영주 미술감독이 CJ ENM 소속으로 담당한 프로그램이다. 〈댄싱 9〉의 세트는 독특한 구조를 띠고 있다. 이영주 미술감독은 댄스 홀을 중심으로 3층 규모의 관중석이 무대까지 연결되는 세트를 구상하며 라스베이거스 태양의 서커스 카쇼와 석유화학산업단지의 유기적인 구조물에서 아이디어를 얻었다. 전체가 연결되는 구조적인 이미지를 보여주며 방송 최초 H빔으로 제작한 3층 관중석을 마련했다. 그렇게 완성된 관중석에서 수백 명의 관객과 함께 댄스 경연 촬영을 진행한 인상적인 프로젝트다.
| East of Eden |
| E |
![[Creator+] 이영주의 A to Z: 〈흑백요리사〉부터 〈피지컬: 100〉까지 출연진을 몰입하게 하는 세트 디자인 7 %EC%97%90%EB%8D%B4%EC%9D%98%EB%8F%99%EC%AA%BD %EC%98%A4%ED%94%88%EC%84%B8%ED%8A%B8 %EB%8F%84%EB%A9%B4 %EC%A6%9D%EA%B6%8C%EC%82%AC 02 %EB%B3%B5%EC%82%AC](https://design-plus.storage.googleapis.com/wp-content/uploads/2024/11/05181018/%EC%97%90%EB%8D%B4%EC%9D%98%EB%8F%99%EC%AA%BD-%EC%98%A4%ED%94%88%EC%84%B8%ED%8A%B8_%EB%8F%84%EB%A9%B4_%EC%A6%9D%EA%B6%8C%EC%82%AC_02-%EB%B3%B5%EC%82%AC-832x600.jpg)
![[Creator+] 이영주의 A to Z: 〈흑백요리사〉부터 〈피지컬: 100〉까지 출연진을 몰입하게 하는 세트 디자인 8 %EC%97%90%EB%8D%B4%EC%9D%98%EB%8F%99%EC%AA%BD %EC%98%A4%ED%94%88%EC%84%B8%ED%8A%B8 %EC%82%AC%EC%A7%84 01](https://design-plus.storage.googleapis.com/wp-content/uploads/2024/11/05181015/%EC%97%90%EB%8D%B4%EC%9D%98%EB%8F%99%EC%AA%BD-%EC%98%A4%ED%94%88%EC%84%B8%ED%8A%B8_%EC%82%AC%EC%A7%84_01-832x553.jpg)
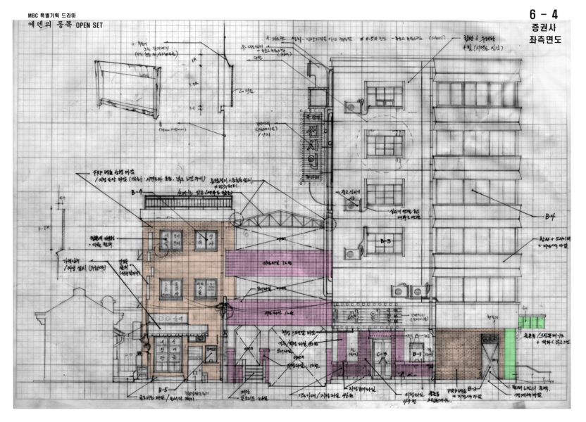
2008년 방영된 MBC 드라마 〈에덴의 동쪽〉은 1960년대에서 2000년대로 이어지는 56부작 시대극이다. 이영주 미술감독은 당시 MBC 미술센터 소속으로 〈에덴의 동쪽〉 합천 오픈세트 제작에 세트 디자이너로 참여했다. 합천 오픈세트는 합천영상테마파크 내에 조성된 것으로, 드라마의 배경인 1980년대 서울 소공동의 거리를 40여 동의 대형 건물들로 구현한 것이다. 이영주 미술감독은 드라마에 증권사 건물로 나왔던, 낙원상가나 세운상가처럼 상가와 연결되는 건물을 어려웠던 작업으로 꼽았다. 하나의 건물 안에서도 입점한 가게들, 그리고 모든 간판에 불이 켜졌을 때의 조화를 고려해 당시 시대처럼 보이는 것에 신경 썼다. 완성도 높은 오픈세트 중 하나로 평가 받는 곳으로, 다른 드라마와 영화에 많이 활용됐다.
| Inspiration |
| I |
영감을 얻기 위해 평소에 하는 것과 특정 프로그램을 준비하면서 집중적으로 하는 활동이 조금 다르지만, 평소에는 온라인과 오프라인, 여행 등을 통해 많은 것을 보려고 한다. 가장 관심 있게 보는 것은 건축물과 전시 공간. “전시 중에서도 설치미술을 더 많이 보고, 건축물은 물론 건축가들의 인터뷰나 강연도 굉장히 재밌고 흥미로워요.”
| MAMA Awards |
| M |
![[Creator+] 이영주의 A to Z: 〈흑백요리사〉부터 〈피지컬: 100〉까지 출연진을 몰입하게 하는 세트 디자인 9 2014MAMA GD 3D](https://design-plus.storage.googleapis.com/wp-content/uploads/2024/11/05181019/2014MAMA_GD_3D-832x381.jpg)
1999년 ‘엠넷 영상 음악 대상’을 시작으로 2009년 ‘엠넷 아시안 뮤직 어워즈(Mnet Asian Music Awards)’를 거쳐 현재 ‘마마 어워즈(MAMA Awards)’로 거듭난 엠넷의 음악 시상식이다. 한국을 벗어나 마카오, 싱가포르, 홍콩, 일본 등에서 개최되는 글로벌 프로젝트로, 이영주 미술감독은 2013년부터 2015년까지 세 번의 시상식 무대에 미술감독으로 참여했다. 미술 영역에서는 프로젝트 전반을 아우르는 총괄 기술 감독을 필두로 메인 세트를 디자인하는 미술감독, 가수별 세트를 디자인하는 미술감독 등의 스태프가 마마 어워즈를 만든다. “2013년에서 2015년까지는 회사 차원에서도 마마의 브랜드 디자인을 중시하면서 계속해서 새로운 시도를 해보자는 게 기조였어요.” 로봇 암, 드론, 홀로그램, 키네틱 아트 등 다양한 하이테크를 무대에 접목한 2015년 마마 어워즈가 대표적인 예. 인상적인 공연으로 회자되는 2014년 GD & 태양의 ‘Good Boy’ 트러스 구조물 무대는 이영주 미술감독이 디자인했다. “세트 디자인은 간단했는데 백스테이지가 크지 않아 분리해 보관할 수 있도록 조립식으로 디자인해야 했고, 빠르게 설치해야 하는 게 관건이었어요.”
| Physical: 100 – Underground |
| P |
![[Creator+] 이영주의 A to Z: 〈흑백요리사〉부터 〈피지컬: 100〉까지 출연진을 몰입하게 하는 세트 디자인 10 %ED%94%BC%EC%A7%80%EC%BB%AC100 %EC%8B%9C%EC%A6%8C2 %EC%82%AC%EC%A7%84 01](https://design-plus.storage.googleapis.com/wp-content/uploads/2024/11/05181014/%ED%94%BC%EC%A7%80%EC%BB%AC100-%EC%8B%9C%EC%A6%8C2_%EC%82%AC%EC%A7%84_01-832x602.jpeg)
![[Creator+] 이영주의 A to Z: 〈흑백요리사〉부터 〈피지컬: 100〉까지 출연진을 몰입하게 하는 세트 디자인 11 %ED%94%BC%EC%A7%80%EC%BB%AC100 %EC%8B%9C%EC%A6%8C2 %EC%82%AC%EC%A7%84 02](https://design-plus.storage.googleapis.com/wp-content/uploads/2024/11/05181015/%ED%94%BC%EC%A7%80%EC%BB%AC100-%EC%8B%9C%EC%A6%8C2_%EC%82%AC%EC%A7%84_02-832x533.jpeg)
2023년 넷플릭스를 통해 처음 공개된 〈피지컬: 100〉은 인간의 신체 능력을 경쟁하는 프로그램이다. 100명이라는 출연진 숫자와 강렬한 비주얼, 미션으로 그해 큰 흥행성적을 거뒀다. 이듬해 공개된 두 번째 시즌에서 ‘언더그라운드’라는 공간 설정은 이영주 미술감독의 아이디어다. 그가 담당하지 않은 시즌 1과 다른 비주얼을 보여주기 위한 선택으로, 시즌 2에서 준비한 미션이나 동선, 장치를 녹이기에도 지하가 적합하다고 판단했다. 이영주 미술감독한 진행한 프로젝트 중 오픈 세트를 제외하고 규모 면에서 가장 크다. 4,000평 가까이되는 스튜디오에서 미션장 부지만 해도 2,000평 규모. 라운드가 바뀔 때마다 세트를 설치, 해체하며 하중을 안전하게 지탱하는 세트를 만드는 게 관건이었고, 두 번째 퀘스트이자 첫 번째 팀전인 ‘5대5 미로 점령전’의 3개 점령지는 초기 설정인 5개에서 바뀐 부분이다.
| Society Game |
| S |
![[Creator+] 이영주의 A to Z: 〈흑백요리사〉부터 〈피지컬: 100〉까지 출연진을 몰입하게 하는 세트 디자인 12 %EC%86%8C%EC%82%AC%EC%9D%B4%EC%96%B4%ED%8B%B0%EA%B2%8C%EC%9E%84 3D 01](https://design-plus.storage.googleapis.com/wp-content/uploads/2024/11/05181012/%EC%86%8C%EC%82%AC%EC%9D%B4%EC%96%B4%ED%8B%B0%EA%B2%8C%EC%9E%84_3D_01-832x452.jpg)
![[Creator+] 이영주의 A to Z: 〈흑백요리사〉부터 〈피지컬: 100〉까지 출연진을 몰입하게 하는 세트 디자인 13 %EC%86%8C%EC%82%AC%EC%9D%B4%EC%96%B4%ED%8B%B0%EA%B2%8C%EC%9E%84 %EB%94%94%EC%9E%90%EC%9D%B8 %EA%B1%B4%EC%B6%95 %ED%94%84%EB%A1%9C%EC%84%B8%EC%8A%A4 01 %EB%B3%B5%EC%82%AC3](https://design-plus.storage.googleapis.com/wp-content/uploads/2024/11/05181014/%EC%86%8C%EC%82%AC%EC%9D%B4%EC%96%B4%ED%8B%B0%EA%B2%8C%EC%9E%84_%EB%94%94%EC%9E%90%EC%9D%B8-%EA%B1%B4%EC%B6%95-%ED%94%84%EB%A1%9C%EC%84%B8%EC%8A%A4_01-%EB%B3%B5%EC%82%AC3-832x542.jpg)
![[Creator+] 이영주의 A to Z: 〈흑백요리사〉부터 〈피지컬: 100〉까지 출연진을 몰입하게 하는 세트 디자인 14 %EC%86%8C%EC%82%AC%EC%9D%B4%EC%96%B4%ED%8B%B0%EA%B2%8C%EC%9E%84 %EC%82%AC%EC%A7%84 01](https://design-plus.storage.googleapis.com/wp-content/uploads/2024/11/05181013/%EC%86%8C%EC%82%AC%EC%9D%B4%EC%96%B4%ED%8B%B0%EA%B2%8C%EC%9E%84_%EC%82%AC%EC%A7%84_01-832x498.jpg)
‘사회와 리더에 대한 특별한 실험이자 흥미로운 게임’을 위해 이영주 미술감독은 원형 마을이라고 불리는 거대한 세트를 디자인했다. 원형 마을 안에는 리더가 만들어지는 방법에 따라 ‘마동’과 ‘늪동’, 두 개의 사회가 존재하게 되며 게임이 진행되는 별도의 공간인 중립동까지, 총 세 개의 구역으로 나뉜다. “처음에는 두 개의 분리된 공간 가운데에 브릿지 같은 중립 공간이 있는 것에서부터 시작했던 것 같아요.” 분리된 공간이 하나가 되고, 다시 2개 층 구조에서 단층이 되는 등 연출진과의 논의를 통해 원형이 선택되었으며, 외부와 격리되고 통제된 원형 마을의 형태는 판옵티콘과 중국 소수 민족의 전통 주거인 토루에서 착안했다.
“2016년 당시에도 사회 시스템을 나눠서 보여주는 모의사회 게임쇼에 대해 거부감이 있거나 이해가 어려운 분위기는 아니었어요. 그렇지만 현대 시점의 비주얼로 두 사회 시스템을 담기에는 밸런스가 맞지 않는 것 같았죠. 둘 모두 설득력 있는 공간을 떠올렸을 때 근현대로 가야 하지 않을까 싶었어요.”
| The Followers of the Evil One & The Deep Sea Mystery |
| T |
![[Creator+] 이영주의 A to Z: 〈흑백요리사〉부터 〈피지컬: 100〉까지 출연진을 몰입하게 하는 세트 디자인 15 %EB%AF%B8%EC%8A%A4%ED%84%B0%EB%A6%AC%EC%88%98%EC%82%AC%EB%8B%A8 %EC%9E%A0%EC%88%98%ED%95%A8 %EC%82%AC%EC%A7%84 01](https://design-plus.storage.googleapis.com/wp-content/uploads/2024/11/05181002/%EB%AF%B8%EC%8A%A4%ED%84%B0%EB%A6%AC%EC%88%98%EC%82%AC%EB%8B%A8_%EC%9E%A0%EC%88%98%ED%95%A8_%EC%82%AC%EC%A7%84_01-832x624.jpg)
![[Creator+] 이영주의 A to Z: 〈흑백요리사〉부터 〈피지컬: 100〉까지 출연진을 몰입하게 하는 세트 디자인 16 %EB%AF%B8%EC%8A%A4%ED%84%B0%EB%A6%AC%EC%88%98%EC%82%AC%EB%8B%A8 %EC%9E%A0%EC%88%98%ED%95%A8 %EC%82%AC%EC%A7%84 02](https://design-plus.storage.googleapis.com/wp-content/uploads/2024/11/05181003/%EB%AF%B8%EC%8A%A4%ED%84%B0%EB%A6%AC%EC%88%98%EC%82%AC%EB%8B%A8_%EC%9E%A0%EC%88%98%ED%95%A8_%EC%82%AC%EC%A7%84_02-832x624.jpeg)
![[Creator+] 이영주의 A to Z: 〈흑백요리사〉부터 〈피지컬: 100〉까지 출연진을 몰입하게 하는 세트 디자인 17 %EB%AF%B8%EC%8A%A4%ED%84%B0%EB%A6%AC%EC%88%98%EC%82%AC%EB%8B%A8 %EC%88%98%EC%82%AC%EB%B3%B8%EB%B6%80 %EC%82%AC%EC%A7%84 01](https://design-plus.storage.googleapis.com/wp-content/uploads/2024/11/05180959/%EB%AF%B8%EC%8A%A4%ED%84%B0%EB%A6%AC%EC%88%98%EC%82%AC%EB%8B%A8_%EC%88%98%EC%82%AC%EB%B3%B8%EB%B6%80_%EC%82%AC%EC%A7%84_01.jpg)
‘악마의 사제’와 ‘심해 속으로’는 〈미스터리 수사단〉를 구성하는 두 에피소드의 제목이다. 〈미스터리 수사단〉은 특수 사건을 전담하는 6인조 수사단이 기묘한 일이 벌어진 현장에 투입돼 6시간 안에 사건을 추적하고 해결하는 어드벤처 추리 예능이다. 에피소드 각각 사이비 종교단체의 건물과 잠수함이라는 공간과 사건이 분명했기 때문에 이영주 미술감독에게는 컨셉을 어떻게 보여줄 것인가에 대한 고민이 더 큰 프로젝트였다. ‘심해 속으로’의 배경이 된 잠수함은 예능 최초로 구현된 잠수함이다. 이중 선체 구조에 위에서 떨어지는 바닷물 등으로 현실감을 더했으며, 잠수함 앞 부분은 기울어지는 움직임을 연출할 수 있도록 제작된 것이 포인트다.
‘악마의 사제’ 속 사제들과 ‘심해 속으로’의 크리처 등 이야기 속 캐릭터들과 실제 인물인 수사단의 활동이 현장에서 동시에 라이브로 진행되기 때문에 사전에 많은 테크니컬 리허설과 시뮬레이션 작업을 거친다. “저도 현장에서 마음 졸이면서 보는 거예요. ‘못 찾으면 어떻게 하지’ 하는데 결국 해내죠. 정종연 PD님은 헤매는 단계와 도달 시간까지 계획하신 걸까, 생각하곤 해요. ‘악마의 사제’ 에피소드에서 출연진들이 두 그룹으로 나뉘는 순간이 오잖아요. 그리고 각각 다른 상황이 펼쳐지고요. 다 따로 찍어서 편집한 게 아니라 실시간으로 동시에 일어나는 일이에요.”
한편, 수사단의 본부는 두 에피소드를 연결하는 핵심 공간이다. 이영주 미술감독은 수사 본부에 서울역 지하의 비밀 공간이라는 설정을 부여했다. “수사 단체가 어디인지 시청자는 몰라도 되지만, 저희가 미술 작업을 할 때에는 그러한 배경이 필요해요. 저는 본부를 서울역 지하의 공간이라고 설정했어요. 영화 〈킹스맨〉처럼 많은 사람들이 오가는 장소의 지하에 비밀스러운 공간이 있는 거죠. 서울역은 교통과 문화의 중심축으로, 우리나라 역사에서도 상징적인 곳이잖아요. 그런 서울역 지하에 본부와 텔레포트 챔버가 있는 거예요. 수사단이 시공간을 넘어서 기묘한 사건 현장으로 가는 장소입니다.”
[Creator+]는 Design+의 스페셜 시리즈입니다. 시선을 사로잡는 프로젝트에 크리에이터의 일과 삶의 경로, 태도와 방식을 더해 소개합니다. 인물을 조명하는 1편과 프로젝트를 A to Z로 풀어내는 2편으로 구성되었으며, 격주로 발행됩니다. [Creator+]는 동시대 주목할만한 디자이너와 아티스트를 소개한 ‘오!크리에이터’를 잇는 두 번째 크리에이터 기획입니다.
![[Creator+] 이영주의 A to Z: 〈흑백요리사〉부터 〈피지컬: 100〉까지 출연진을 몰입하게 하는 세트 디자인 18 %EC%9D%B4%EC%98%81%EC%A3%BC %EA%B0%90%EB%8F%85%EB%8B%98 %EC%8D%B8%EB%84%A4%EC%9D%BC 2](https://design-plus.storage.googleapis.com/wp-content/uploads/2024/11/05181004/%EC%9D%B4%EC%98%81%EC%A3%BC-%EA%B0%90%EB%8F%85%EB%8B%98-%EC%8D%B8%EB%84%A4%EC%9D%BC_2.jpg)
![[Creator+] 이영주의 A to Z: 〈흑백요리사〉부터 〈피지컬: 100〉까지 출연진을 몰입하게 하는 세트 디자인 19 %EC%9D%B4%EC%98%81%EC%A3%BC %EA%B0%90%EB%8F%85%EB%8B%98 %EC%8D%B8%EB%84%A4%EC%9D%BC2 1](https://design-plus.storage.googleapis.com/wp-content/uploads/2024/11/05181003/%EC%9D%B4%EC%98%81%EC%A3%BC-%EA%B0%90%EB%8F%85%EB%8B%98-%EC%8D%B8%EB%84%A4%EC%9D%BC2_1.jpg)